PROJECT: INTERIOR ARCHITECTURE - SIFAKI EIRINI - PHONE 6955581674
Aρχιτεκτονικη εσωτερικου χωρου κατοικια στα Μαλια Ηρακλειου.
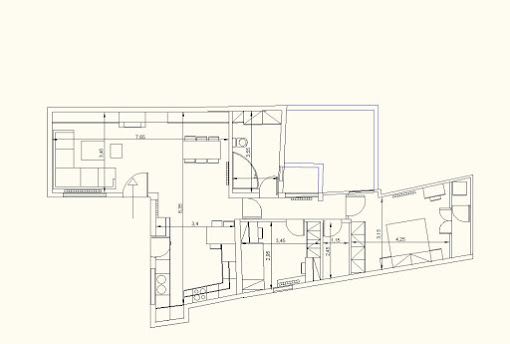
Κατοψη κατοικιας
Ανοψη κατοικιας
Αρχιτεκτονικη εσωτερικου χωρου σε κατοικια στη Χερσονησο Ηρακλειου.
Αρχιτεκτονικη εσωτερικου χωρου σε κατοικια στη Χερσονησο Ηρακλειου.
Ανοψη
Κατοψη airbnb στη Θερισσο Ηρακλειου
Ανοψη αirbnb
Ανοψη καταστηματος
Διαχωρισμος και αρχιτεκτονικη διαμορφωση οροφου 200τ.μ. σε δυο κατοικιες στης Μοιρες.
Εσωτερικη αρχιτεκτονικη σε κατοικια στο Προφητη Ηλια Ηρακλειου
Κατοψη εξοχικης κατοικιας στη Χεσονησο
Κατοψη κατοικιας στο ηρακλειο - διαμορφωση ενιαιου.
Αirbnb στην Αγ. Πελαγια
Η κατωθεν εικονα ειναι η κατοψη μιας μονοκατοικιας
Το παρακάτω αρχιτεκτονικό σχέδιο αφορά της μετατροπή μίας παλιάς κατοικίας σε μία γκαρσονιέρα και ένα μικρο διαμέρισμα..Αυτές οι δυο κάτοψις απεικονίζουν μία μικρή μαζονετα .
Μετατροπή από μεγάλη κατοικία σε μία γκαρσονιέρα και ένα διαμέρισμα..
Κάτοψη - διαμόρφωση κατοικίας
Εσωτερικη αρχιτεκτονικη και διαμορωση χωρων στις δυο κατοικιες.
Κατοψη κατοικιας στη Ζωοδοχο πηγη Ηρακλειου



























